Bureaux Le Belvédère – Suresnes (92)

Programme : réhabilitation d’un bâtiment industriel en immeuble de bureaux R+6 avec deux niveaux de sous-sol
Maître d’ouvrage : SNC Fontaine Asnières
Architecte : ECDM Architectes – Chefs de projet : Jérémy Bernier, Lucie Chapuis et Ilies Issad
Mission : mission complète d’Architecte
Équipe : VP Green (Structure et Façade) / Becice (Fluides humides) / Square (Fluides secs) / GPE (Appareils élévateurs) / META (Acoustique) / Ekobase (Économie) / Payet (AMO Environnement et Paysage)
Photographe : ECDM (photos de chantier) / Salem Mostefaoui (photos du projet réalisé)
Localisation : Suresnes (92), France
Surface : 4 202 m² SPD / 4 175 m² SU (cis locaux vélos) / 516 m² de terrasses
Coût : 10.8 M€ HT
Livraison : juillet 2023
Durée des travaux : 26 mois
Labels environnementaux HQE BD V3 2019 niveau très performant / BBC Effinergie Rénovation / Wiredscore 2019 niveau Gold


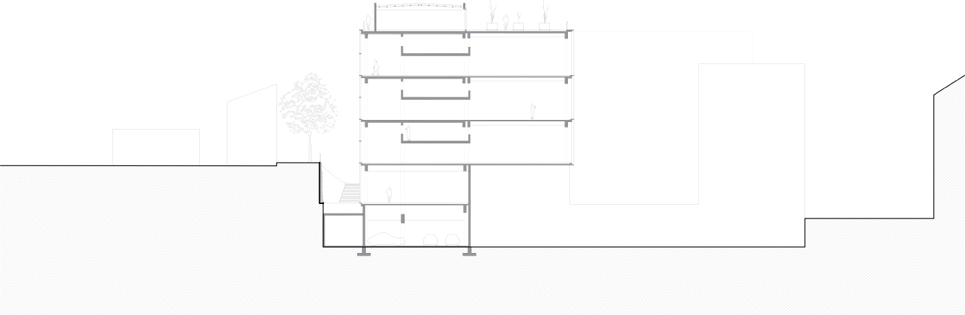
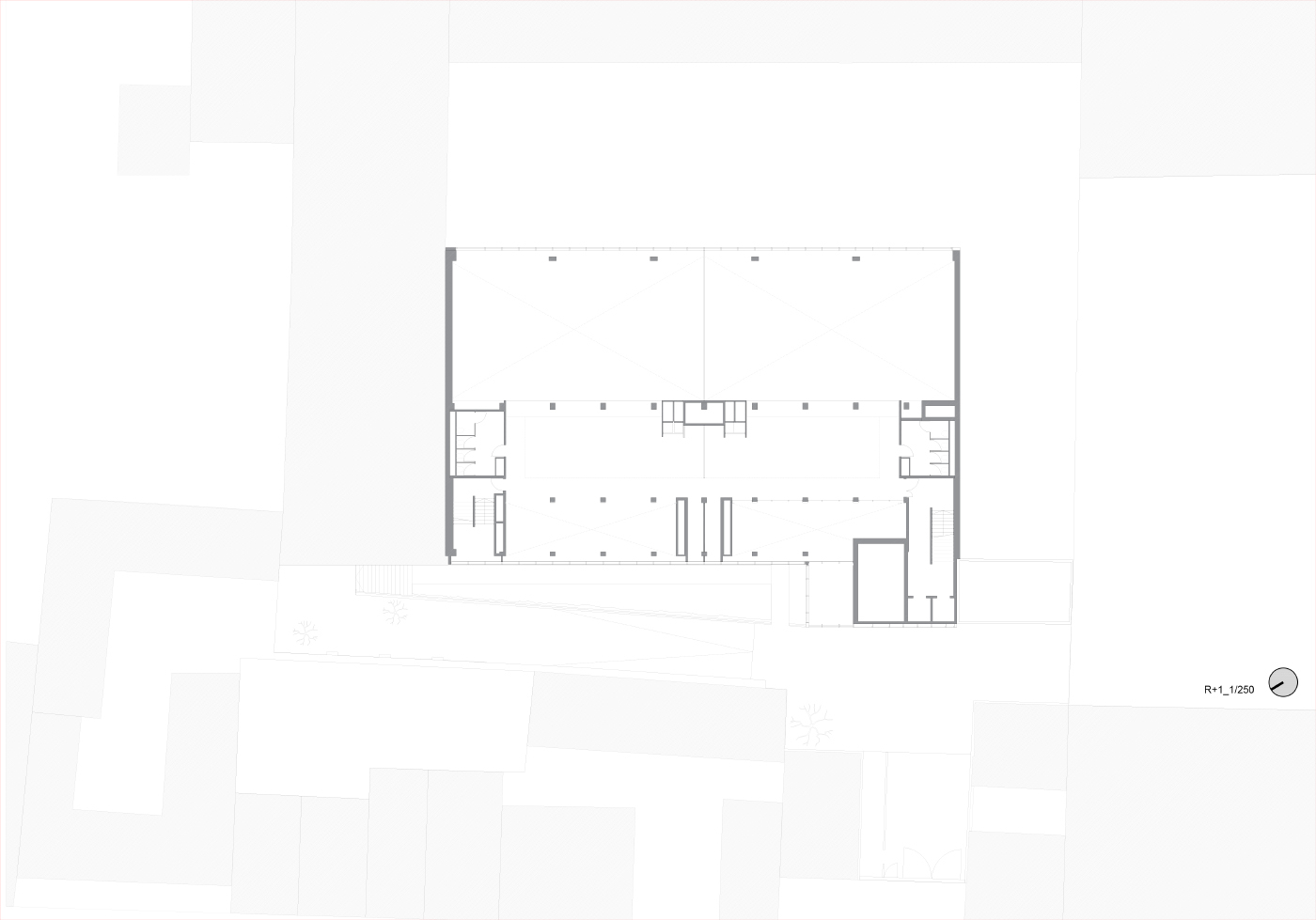
Le projet a consisté à transformer un ancien central de commutation téléphonique de France Télécom en un immeuble à usage de bureaux. Une grande partie de la structure existante a été conservée permettant d’obtenir des niveaux de très grande hauteur, et des planchers partiels ont été insérés pour proposer des espaces diversifiés de plus faibles hauteurs.
La façade existante en béton préfabriqué finition désactivée ont été déposées en intégralement réemployées comme dallage de sol dans un espace extérieur. A la place de ces façades, de larges volumes vitrés donnent à voir la structure existante et les espaces de bureaux.
En toiture, l’emprise d’un ancien local technique extérieur a été couverte et transformé en un espace de bureaux ouvert sur une vaste terrasse panoramique anciennement inaccessible.
L’ancien premier niveau de sous-sol a été entièrement requalifié en rez-de-jardin grâce à la création d’une cour anglaise dont le soutènement est constitué par un mur investi par la végétation.