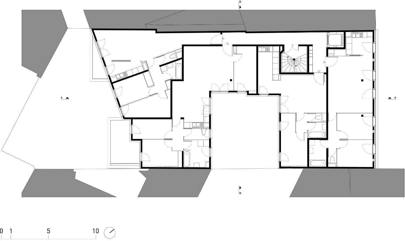
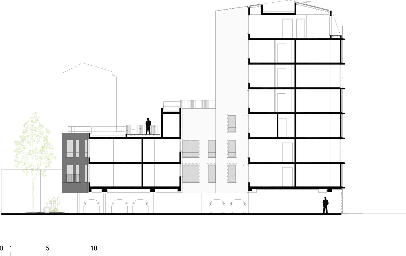
Logements rue Louis Blanc – Paris X (75)

Programme : construction d’un immeuble de 17 logements sociaux
Maître d’ouvrage : RIVP
Architecte mandataire : ECDM architectes – chef de projet : Dario Oeschli
Mission : mission complète d’Architecte
Équipe : Betiba (TCE)
Entreprise générale : Les Maçons Parisiens
Photographe : Benoît Fougeirol
Localisation : 45 rue Louis Blanc, Paris X (75), France
Surface : 1 537 m² HON
Coût : 2.19 M€ HT
Livraison : 2006
Certifications et labels environnementaux : –