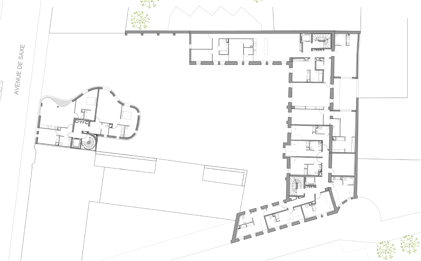
Logements avenue de Saxe – Paris VII (75)

Programme : réhabilitation de l’ancien monastère des Clarisses en un foyer de 27 studios et 15 logements en accession et construction de 13 logements en accession neufs
Maître d’ouvrage : OGIC
Architecte : ECDM architectes – chef de projet : Rikje Maas
Mission : Conception et conformité architecturales
Équipe : SCYNA 4 (Structure) / PRELEM (Fluides et Thermique) / Cardonnel (Thermique et Façade Bâtiment neuf) / Cabinet Racine (Économie) / AVLS (Acoustique) / LASA (Acoustique classement façade) / PENA & PENA (Paysage) / GPI (Géomètre)
Photographe : Benoît Fougeirol
Localisation : Villa de Saxe et avenue de Saxe, Paris VII (75), France
Surface : 2 190 m² SHAB
Coût : 10.2 M€ HT
Livraison : 2015
Certifications et labels environnementaux : –

La conception de notre projet s’est développée autour de trois intentions fortes structurées par l’héritage de ce site singulier.
Il y a avant tout la question du jardin, de ce terrain protégé, hors du temps, que l’on perçoit, et que nous allons pouvoir donner à voir. Il ne s’agit pas seulement de respecter une règle urbaine en restituant une somme de pleine terre mais de préserver le maximum d’un patrimoine végétal atypique, de libérer le sol le plus largement possible pour démultiplier ce jardin et enfin de structurer celui-ci pour générer des profondeurs de champ et des gradations dans sa perception.
Cette organisation hors du temps a généré pour le voisinage un équilibre, une stabilité du paysage avec un vide structurant, une ponctuation sur la rue, une note de silence. Conscients de la mutation qu’aura sur l’environnement la réalisation d’un nouveau projet, nous nous sommes interrogés sur la manière de donner aux voisins de nouvelles qualités. Il y a d’abord la chute du mur remplacé par une limite en verre structurel, totalement transparent qui ouvre complètement le jardin sur tout le linéaire de la rue de Saxe.
Le nouveau bâtiment est compact, sur pilotis, cadrant la vision d’un second champ. Un maximum d’arbres est conservé, les courettes sont désormais ouvertes sur une vue dégagée, et les pignons et murs aveugles sont végétalisés, couverts par des plantes grimpantes.