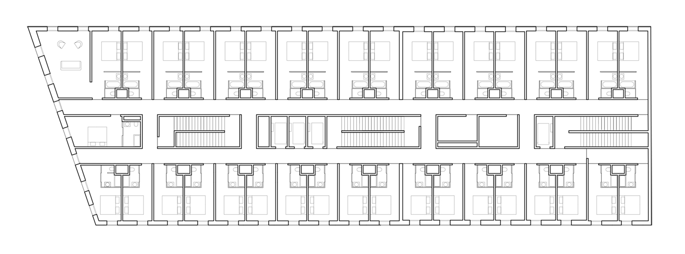
Ensemble mixte Binet • Paris XVIII (75)

Programme : 1 hôtel *** de 117 chambres, 1 hôtel **** de 74 chambres, 1 commerce; 1 salon de réunion et bureaux
Maître d’ouvrage : Spie Batignolles Immobilier
Architecte : ECDM architectes – Chef de projet : Rikje Maas
Mission complète d’Architecte – Mandataire
Équipe : Jacky Manus (Structure) / Berim (Fluides) / Meta (Acoustique) / LTA (Economiste) / AGI2D (HQE) / Moha (Décorateur)
Photographe : Salem Mostefaoui
Localisation : avenue de la Porte de Montmartre, Paris XVIII (75), France
Surface : 7 025 m² SHON
Coût : 15 M€ HT
Livraison : 2018
Certifications et labels : démarche HQE